le projet de boulodrome sort des cartons
GILBERT MASSON
LE BOULODROME
Réclamé depuis plus de 10 ans par les joueurs et membres du bureau , ce projet a été lancé par la municipalité depuis septembre 2006
apres une gestation longue ce projet devrait voir enfin le jour en 2009 avec 8 terrains couverts règlementaires plus une salle de réunions , un coin rangement des sanitaires et un bar
les licenciés croisent les doigts
LA PHOTO DU SITE DU CHAMP DE FOIRE DE BERE
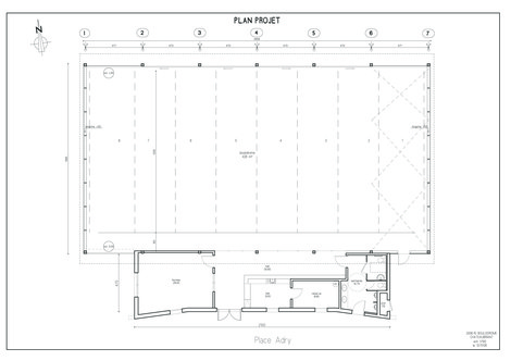
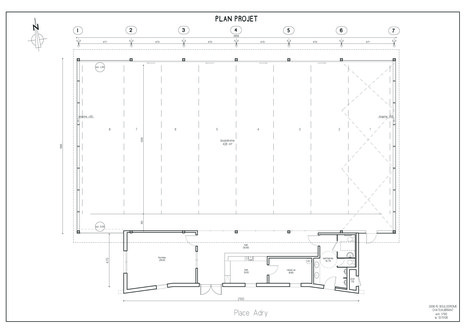
au fond la place rené adry lieu de déroulement de nos manifestations ou
il est possible de cadrer 80 terrains règlementaires
ci apres les plans et coupes du projet dessiné par l'architecte dplg gilbert Masson de Châteaubriant
lui même licencié à la FFPJP depuis 1966 et secrétaire du club
au fond la place rené adry lieu de déroulement de nos manifestations ou
il est possible de cadrer 80 terrains règlementaires
ci apres les plans et coupes du projet dessiné par l'architecte dplg gilbert Masson de Châteaubriant
lui même licencié à la FFPJP depuis 1966 et secrétaire du club


LA UNE DE Boulistenaute.com
Les actualités de la pétanque et du monde bouliste
-
Durk, Robineau, Rocher, intouchables
19/10/2025 -
Top vidéo pétanque👍Finale ROCHER vs BAUDINO, Mondial Laurent Barbero 2025 - Ville de Fréjus
19/10/2025 -
Top vidéo pétanque👍Demi-finale ROCHER vs CAZES, Mondial Laurent Barbero 2025 - Ville de Fréjus
16/10/2025 -
La série de vidéos pétanque : Grand Prix "Plein Fer" tête-à-tête de pétanque 2025 au Château de Percey dans l'Yonne
14/10/2025 -
Top vidéo pétanque👍Quart BAUDINO vs LOY, Mondial Laurent Barbero 2025 - Ville de Fréjus
13/10/2025
Agenda des Directs
-
Cagnes-Sur-Mer : Europétanque triplette open des Alpes-Maritimes 2025 - TOP 4000 Pétanque - Par poules
18/10/2025 08:30 -
Le Lavandou, capitale de la pétanque le temps du Souvenir Matthias Albertini
25/10/2025 09:00 -
Ville d'Orléans : 5ème National triplette open 2025 - TOP 500 Pétanque - Par poules
15/11/2025 09:00